lien vers le site internet en français link to the website in English Link al sito web in italiano vínculo hacia la página web en español
HOME VALUATION THE TEAM ATELIERCOM RESOURCES OUR BLOG

LARGE 1-BEDROOM APARTMENT IN THE VERY CENTRE OF ANTIBES WITH CELLAR AND COMMUNAL PARKING



Possibility to acquire a large garage at an additional cost
Exclusive Agency Agreement Antibes Transactions
Sale price : €328,000





  
06 18 46 92 74

This large one-bedroom apartment is ideally located in the heart of Antibes town centre, on the fifth floor of a well-maintained residence with lift, communal parking and co-ownership regulations dated 15/02/1963. The apartment has recently been fully renovated and enjoys an ideal location between Antibes and Juan-les-Pins. It is close to shops, town attractions, beaches, the train station and bus stops.

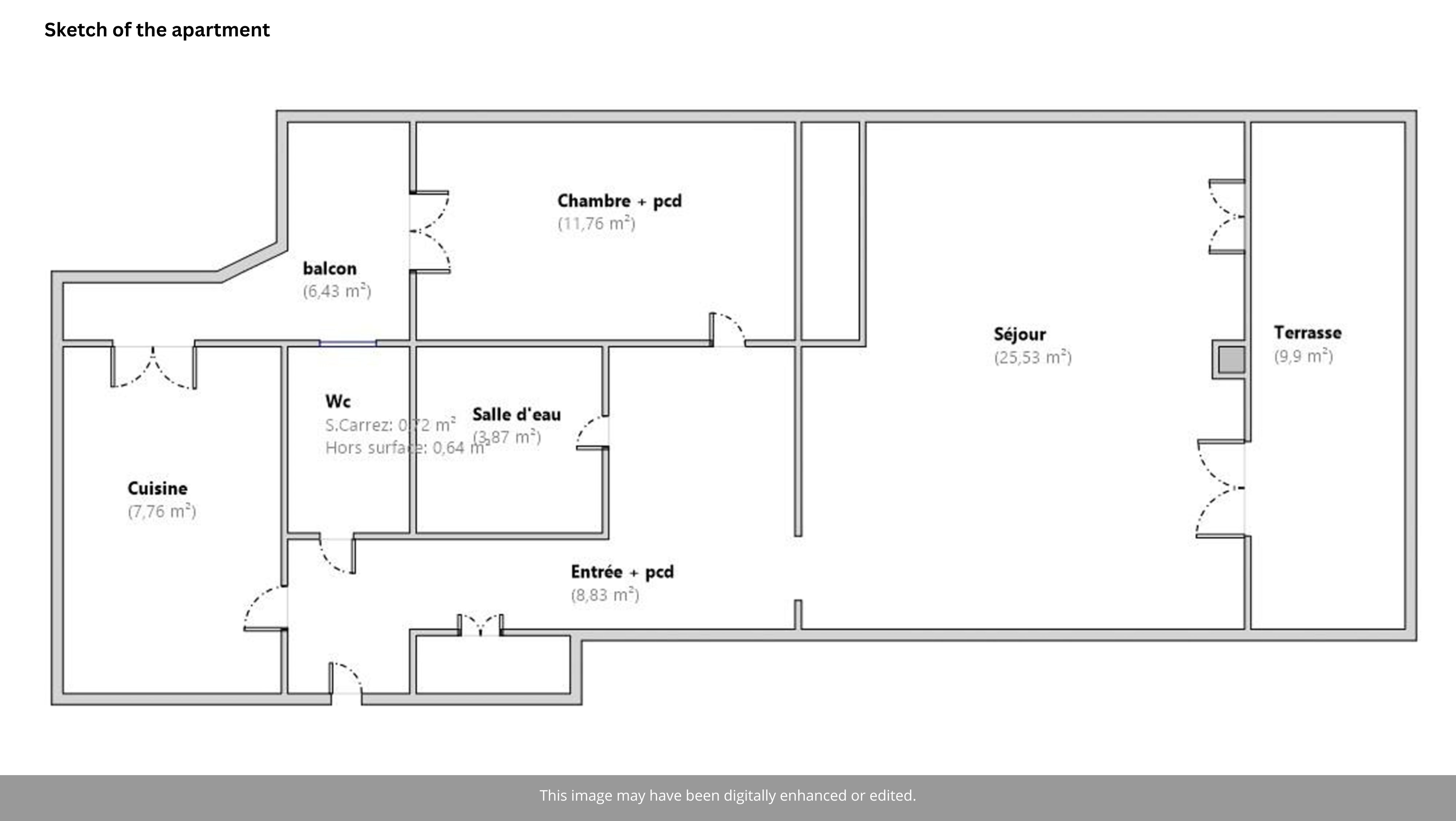
This attractive apartment, with a floor area of 58.47 sqm (Carrez Law), consists of an entrance hall with storage cupboard, a large living/dining room, a separate fully fitted kitchen, a shower room, a separate WC with wall-hung toilet and window, one bedroom with built-in wardrobe, a balcony serving the living room (south-facing, slightly west-facing) and a corner balcony serving the kitchen and bedroom.

In very good condition and tastefully decorated in a modern and neutral style, with a functional layout, the apartment benefits from a city view from the living room, a partial sea glimpse from the bedroom side and natural cross ventilation thanks to its dual aspect.

Comfort is ensured by double-glazed windows and French doors, air conditioning in the living room/dining room, a new electrical installation, floating parquet flooring (living room, bedroom and hallway), tiled floors (wet rooms), collective heating, fibre-optic internet connection and an electric hot water tank.

A cellar completes this property. It is also possible to acquire, at an additional cost, a large garage located on the ground floor of a nearby residence.

SURFACE DETAILS
Room / Area Carrez Law Surface
Entrance + cupboard8.83 sqm
Living room25.53 sqm
Kitchen7.76 sqm
Shower room3.87 sqm
Bedroom + cupboard11.76 sqm
WC0.72 sqm
Total 58.47 sqm

Other surfaces Non-Carrez surface
Balcony serving the living room9.90 sqm
Balcony serving the bedroom and kitchen6.43 sqm
WC0.64 sqm
Total 16.97 sqm

1 / 20
View of the living/dining room
2 / 20
View of the living/dining room
3 / 20
View of the living/dining room
4 / 20
View of the bedroom
5 / 20
View of the bedroom
6 / 20
View of the separate kitchen
7 / 20
View of the separate kitchen
8 / 20
View of the separate kitchen
9 / 20
View of the shower room
10 / 20
View of the hallway
11 / 20
View of the balcony serving the living room
12 / 20
View of the balcony serving the living room
13 / 20
Sea glimpse from the bedroom balcony
14 / 20
View of the bedroom balcony
15 / 20
View of the bedroom balcony
16 / 20
View of the garage in a nearby residence
17 / 20
View of the garage in a nearby residence
18 / 20
Apartment floor plan
19 / 20
Surface table
20 / 20
Useful links

This property is ideal for a single person or a young couple wishing to enjoy easy access to the town’s attractions, or for an investor looking to benefit from its strong rental potential. A viewing is highly recommended!

For further information or to arrange a viewing, contact Antibes Transactions on 06 18 46 92 74. We will be happy to assist you in making your property project a reality.

Energy and climate performance

Energy performance inspection report carried out on 03/12/2025

- ENERGY RATING: C
134 kWh/m2/year consumption (primary energy) | 100 kWh/m2/year final energy
- CLIMATE RATING: C
16 kg CO2/m2/year greenhouse gas emissions
DPE rating
- Estimation of the property energy yearly cost: between 770 € and 1,100 € per year
Average energy prices indexed based on the years 2021, 2022 and 2023 (including standing charges)
The costs are estimated based on the characteristics of the property and standard usage across five areas (heating, hot water, air conditioning, lighting, and auxiliary systems).

Additional information

Real estate agency fees payable by the seller.
Average annual condominium service charges paid by the seller : approximately €2,160, amount declared by the seller.
Property sold subject to co-ownership regulations
Number of units in the condominium: 40 (including 35 residential units)
Professional property manager
Property tax : approximately €900, amount declared by the seller
Condition of the property: good condition

Information about the risks to which this property is exposed is available on the Géorisques website:
www.georisques.gouv.fr

The risks-and-pollution report for this property can be viewed on our website:
www.antibes-transactions.fr/PDF/erp_0039.pdf

You can see the fee schedule from Antibes Transactions on our website:
www.antibes-transactions.fr/EN/honoraires.php

Geographical location

Legal information about the real estate agency Antibes Transactions

Address: 540 Première Avenue 06600 Antibes - France
Telephone: 06 18 46 92 74
Trade and Companies Register: 910 130 996 R.C.S. Antibes
Siren number: 910 130 996
Professional licence number: CPI 0605 2022 000 000 062
Real estate agency registered with the French one-stop business registration institution.

The professional licence of the estate agency Antibes Transactions states “No holding of client funds” and “No financial guarantee”. Antibes Transactions is therefore not authorised to receive or hold any funds, instruments or valuables other than those representing its remuneration in the course of its property transaction activities.

Informations about the real estate agent

real estate agent Dante Obregon's business card

Disclaimer

The content of this page has been translated from its original version in French language by a non-official translator and it is provided for information purposes only. For all information on the property required by French law, please visit our website in French language by clicking here.

The images and videos in this property listing are non-contractual. They may show features that are not included in the sale of the advertised property. These images and videos may have been modified or created using computers or other digital tools.

one project, one team, one story

Real Estate Antibes | Real Estate Juan-les-Pins | Real Estate Antibes Juan-les-Pins | Houses for sale in Antibes | Flats for sale in Antibes | Apartments for sale in Antibes | 1-bedroom flats for sale in Antibes | 2-bedroom flats for sale in Antibes | 3-bedroom flats for sale in Antibes | last-floor flats for sale in Antibes | Real Estate Central Antibes | Real Estate Antibes Pagane | Real Estate Antibes Jules Grec | Real Estate Antibes Laval | Real Estate Antibes Roi Soleil | Real Estate Antibes St Jean | Real Estate Antibes Old Town | Real Antibes Estate Antibes Badine | Real Estate Antibes La Colle | Real Estate Antibes Combes | Real Estate Antibes La Fontonne | Real Estate Antibes Port | Real Estate Antibes Saint Claude | Real Estate Antibes Rostagne | Real Estate Antibes Valbosquet | Real Estate Antibes Saint-Maymes | Real Estate Antibes Eucalyptus | Real Estate Antibes Exflora | Real Estate Antibes Bijou Plage | Real Estate Antibes Rabiac Estagnol | Real Estate Antibes Âmes du Purgatoire | Real Estate Antibes Peyregoue | Real Estate Antibes Cap | Real Estate Antibes Salis | Real Estate Antibes Ponteil | Real Estate Antibes Maures | Real Estate Antibes Val Claret | Real Estate Antibes Prugnons | Real Estate Antibes Bréguières | Real Estate Antibes Moulières | Real Estate Antibes Sarrazine | Real Estate Antibes Beauvert | Real Estate Antibes Rastines | Real Estate Antibes Terriers | Real Estate Antibes Brusquets | Real Estate Antibes Fontmerle