Located in Antibes, this 1-bedroom apartment of approx. 47.38 m² (Carrez Law) is in a well-maintained residence, whose co-ownership regulations date from 9 January 1979. Set in a quiet environment, set back from the road, the residence offers a green setting with well-kept shared gardens, a lovely swimming pool and an on-site caretaker. Shared parking spaces are also available within the residence.
The location is particularly sought-after, halfway between the town centre and the north of Antibes, in the immediate vicinity of the retail area including the large Carrefour shopping centre, with quick access to the A8 motorway making travel to Cannes and Nice easy, as well as routes leading to the Sophia Antipolis technology park and the International Centre of Valbonne (CIV).
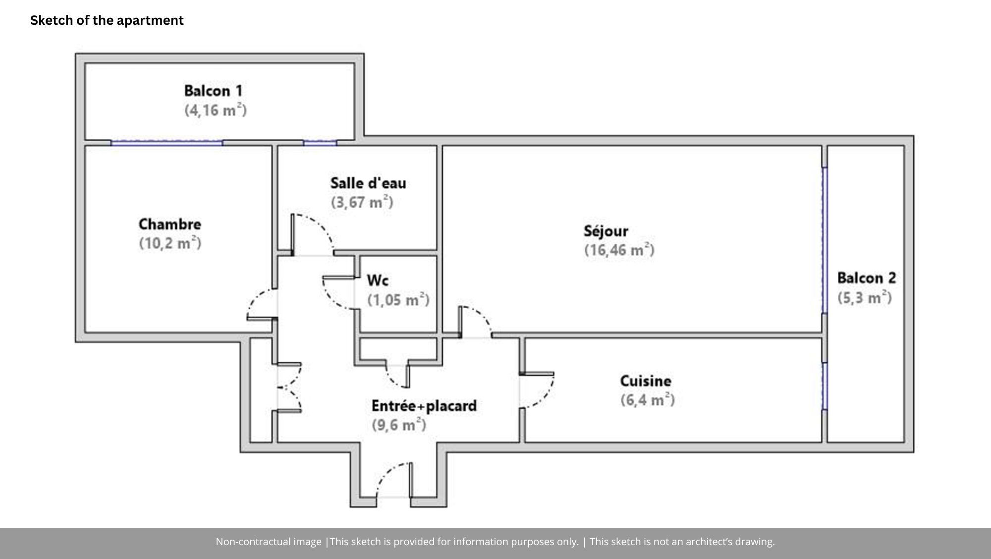
On the third floor of four (in a building with a lift serving all floors down to the basement), the apartment benefits from dual aspect, providing lovely natural light and pleasant, semi-through natural ventilation. It comprises an entrance hall with two storage cupboards, a hallway creating a clear separation between the day and night areas, a bright living room, a separate fitted kitchen, a comfortable bedroom, a shower room with a window, and a separate WC with a wall-hung toilet. Two balconies complete the property: the first serves the living room and kitchen and faces east (slightly towards the north), and the second is accessed from the bedroom and faces north (slightly towards the west).
The apartment offers quality features, including a pleasant sea view from the living room and kitchen, electric roller shutters in the living room and bedroom, manual shutters in the kitchen, a manual awning on the balcony serving the living room, individual gas heating, individual gas hot water production, as well as a fibre internet connection.
A cellar and a private outdoor parking space complete this property. It is also possible to purchase, at an additional cost, a garage (with mezzanine storage space) located on the ground floor of the same development. This apartment is an ideal opportunity, whether as a main residence, a second home or a rental investment. Those working outside Antibes will particularly appreciate the easy access to Sophia Antipolis and the A8 motorway, a major day-to-day advantage.
| SURFACE AREA DETAILS | |
|---|---|
| Room or Area | Carrez Law Area |
| Entrance + cupboard | 9,60 m² |
| Bedroom | 10,20 m² |
| Shower room | 3,67 m² |
| WC | 1,05 m² |
| Living room | 16,46 m² |
| Kitchen | 6,40 m² |
| Total | 47,38 m² |
| Other areas | Non-Carrez Area |
|---|---|
| Balcony serving the bedroom | 4,16 m² |
| Balcony serving the living room | 5,30 m² |
| Cellar | 3,30 m² |
| Total | 12,76 m² |
For further information or to arrange a viewing, contact Antibes Transactions on 06 18 46 92 74. We will be happy to assist you in making your property project a reality.
Energy performance inspection report carried out on 02/02/2026
- ENERGY RATING: E
244 kWh/m2/year consumption (primary energy) | 232 kWh/m2/year final energy
- CLIMATE RATING: E
50 kg CO2/m2/year greenhouse gas emissions
- Estimation of the property energy yearly cost: between 1 160 € and 1 630 € per year
Average energy prices indexed over the years 2021, 2022 and 2023 (including standing charges)
The costs are estimated based on the characteristics of the property and standard usage across five areas (heating, hot water, air conditioning, lighting, and auxiliary systems).
Real estate agency fees payable by the seller. Average annual condominium service charges paid by the seller : approx. €2 085 Property sold subject to co-ownership regulations Number of units in the condominium: 185 (including 66 residential lots) Professional managing agent Property tax : approx. €963 in 2023, amount declared by the seller Condition of the property: in need of updating
Information about the risks to which this property is exposed is available on the Géorisques website:
www.georisques.gouv.fr
The risks-and-pollution report for this property can be viewed on our website:
www.antibes-transactions.fr/PDF/erp_0040.pdf
You can see the fee schedule from Antibes Transactions on our website:
www.antibes-transactions.fr/EN/honoraires.php
Address: 540 Première Avenue 06600 Antibes - France Telephone: 06 18 46 92 74 Trade and Companies Register: 910 130 996 R.C.S. Antibes Siren number: 910 130 996 Professional licence number: CPI 0605 2022 000 000 062 Real estate agency registered with the French one-stop business registration institution. The professional licence of the estate agency Antibes Transactions states “No holding of client funds” and “No financial guarantee”. Antibes Transactions is therefore not authorised to receive or hold any funds, instruments or valuables other than those representing its remuneration in the course of its property transaction activities.
The content of this page has been translated from its original version in French language by a non-official translator and it is provided for information purposes only. For all information on the property required by French law, please visit our website in French language by clicking here. The images and videos in this property listing are non-contractual. They may show features that are not included in the sale of the advertised property. These images and videos may have been modified or created using computers or other digital tools.
Real Estate Antibes | Real Estate Juan-les-Pins | Real Estate Antibes Juan-les-Pins | Houses for sale in Antibes | Flats for sale in Antibes | Apartments for sale in Antibes | 1-bedroom flats for sale in Antibes | 2-bedroom flats for sale in Antibes | 3-bedroom flats for sale in Antibes | last-floor flats for sale in Antibes | Real Estate Central Antibes | Real Estate Antibes Pagane | Real Estate Antibes Jules Grec | Real Estate Antibes Laval | Real Estate Antibes Roi Soleil | Real Estate Antibes St Jean | Real Estate Antibes Old Town | Real Antibes Estate Antibes Badine | Real Estate Antibes La Colle | Real Estate Antibes Combes | Real Estate Antibes La Fontonne | Real Estate Antibes Port | Real Estate Antibes Saint Claude | Real Estate Antibes Rostagne | Real Estate Antibes Valbosquet | Real Estate Antibes Saint-Maymes | Real Estate Antibes Eucalyptus | Real Estate Antibes Exflora | Real Estate Antibes Bijou Plage | Real Estate Antibes Rabiac Estagnol | Real Estate Antibes Âmes du Purgatoire | Real Estate Antibes Peyregoue | Real Estate Antibes Cap | Real Estate Antibes Salis | Real Estate Antibes Ponteil | Real Estate Antibes Maures | Real Estate Antibes Val Claret | Real Estate Antibes Prugnons | Real Estate Antibes Bréguières | Real Estate Antibes Moulières | Real Estate Antibes Sarrazine | Real Estate Antibes Beauvert | Real Estate Antibes Rastines | Real Estate Antibes Terriers | Real Estate Antibes Brusquets | Real Estate Antibes Fontmerle